“Featuring two sections in this do-it-yourself garden shed kit, the Jayden is a versatile shed that you’ll erect yourself with the assistance of a couple friends most likely within a day. The accompanying instructional video and guide provide easy to follow directions for the assembly process. The Jayden will make a great garden or tool shed at the same time as it adds curb appeal to your property. The Jayden shed could also be utilized as a meditation space, workout area, small office, game room or reading spot. As you use the space for organizational purposes, gardening, creating, fixing, working, playing games or reading the Jayden DIY shed will improve your outdoor living area with its ecofriendly, solid wood, quality crafted appeal. These do it yourself cabin kits are made from the highest quality eco friendly Nordic Spruce. These solid wood cabins may also be transformed in quite a few how one can create a space that is beautifully appointed and ready for whatever you’ll believe. From a pool house to a reading nook or from a studio to a man cave the options are virtually limitless. Easy to build with the assistance of a couple people in a fairly short time, detailed assembly instructions and an informational video are provided to aid in the installation process. Our products come as a DIY package on a pallet(s), covered in shrink-wrap. The package includes the entire boards (roof, ceiling, wall and floor). All windows and doors, locks, nuts and bolts as well as screws are included in conjunction with easy-to-follow manuals and assembly specifications.”
Number of Rooms: 2
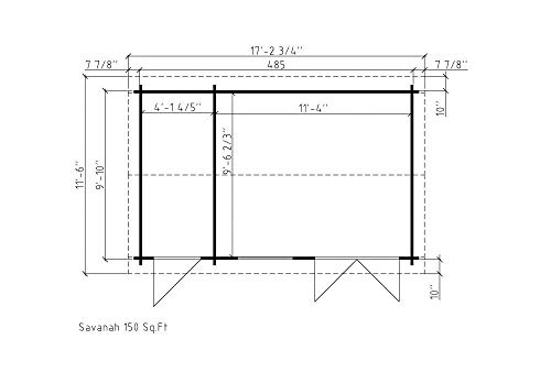
Inside dimensions: 11’4″ x 9’7″; 4’2″ x 9’7″
Outside dimensions: 17’3″ x 11’6″
Height overall: 10″
Weight: 2941
The Jayden 150 Sq.Ft – Tiny Home
Number of Rooms: 2
Inside dimensions: 11’4″ x 9’7″; 4’2″ x 9’7″
Outside dimensions: 17’3″ x 11’6″
Additional information
| Brand | |
|---|---|
| EAN | |
| EANList | |
| Label | |
| Manufacturer | |
| PackageDimensions | |
| ProductGroup | |
| ProductTypeName | |
| Publisher | |
| Studio |








Reviews
There are no reviews yet.