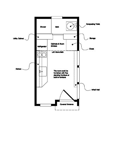
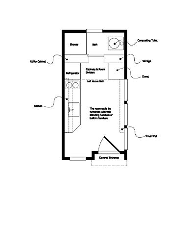
These plans are for an 8′ X 16′ Tiny house on wheels. It is designed to capture as much sun shine as imaginable. I can mail you hard copies on 8 1/2 X 11 paper. All plans are designed by Ben Stone. Ben is a retired Engineer in Canada. Ben also drafts these himself the use of the recent AutoCAD software to make sure accuracy. He studied Engineering back in the early 1980’s. After over 30 years in the Construction industry he developed a passion for building cool items around his farm and cabin. These are great DIY projects. With a little skill anybody can Do It Yourself. Ben is all the time a email away if in case you have any questions whilst building one of his projects. He’s adding new plans always.
✔️ 8′ X 16′ Tiny House on Wheels Plans
✔️ It is designed to capture as much sun shine as imaginable
✔️ Micro Cottage
✔️ Small Guest House
✔️ All plans are designed by Ben Stone
8′ X 16′ Tiny House on Wheels Plans DIY Fun to build!!
✔️ 8′ X 16′ Tiny House on Wheels Plans
✔️ It is designed to capture as much sun shine as possible
✔️ Micro Cottage
Additional information
| Binding | |
|---|---|
| Brand | |
| EAN | |
| EANList | |
| Label | |
| Manufacturer | |
| MPN | |
| PackageDimensions | 20, hundredths-inches, 1200, hundredths-inches, 15, Hundredths Pounds, 900, hundredths-inches |
| PartNumber | |
| ProductGroup | |
| ProductTypeName | |
| Publisher | |
| Studio | |
| UPC | |
| UPCList |









Reviews
There are no reviews yet.